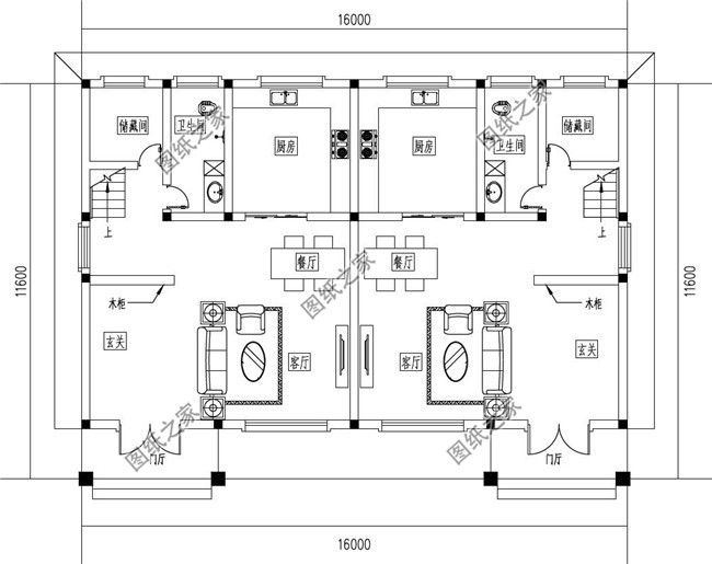
图纸介绍:兄弟双拼三层小户型别墅设计图纸,农村自建房屋造价低的款式,占地160平方米左右(单户80平方米左右),左右对称,安静而整齐地矗立着,给人一种落落大方的感觉。一层的客厅和餐厅连在一起,使得空间更加宽敞明亮,多窗户设计,采光绝佳,室内布局合理,每层楼都实现了空间的最大使用,是农村实用的户型设计。
占地面积:16m*11.6m,163平方米左右,单户80平左右;
建筑层高:三层;
建筑高度:12.6米(含屋顶);
设计功能:
一层:玄关、客厅、餐厅、厨房、、卫生间、储藏间;
二层:卧室(带卫生间)、卧室x2、卫生间、露台;
三层:卧室(带卫生间)、卧室、卫生间、露台;
图纸目录:
建 筑 图:建筑施工说明、建筑构造设计说明、一层平面图、二层平面图、三层平面图、屋顶平面图、正立面图、背立面图、左立面图、右立面图、1-1剖面图、楼梯大样图、节点大样图、门窗大样图、门窗表等;
结 构 图:结构设计说明、大样图、基础平面布置图、一层柱配筋图、二层柱配筋图、三层柱配筋图、一层顶梁平法施工图、二层顶梁平法施工图、顶层梁平法施工图、一层顶板结构平面图、二层顶板结构平面图、顶层板结构平面图、楼梯配筋图等;
给排水图:给排水设计说明、一层给排水平面图、二层给排水平面图、三层给排水平面图、卫生间大样图、给排水系统图等;
电 气 图:电气设计说明、电气设备材料表、等电位联结做法、配电系统图、弱电系统图、配电干线系统图、一层照明平面图、二层照明平面图、三层照明平面图、一层插座平面图、二层插座平面图、三层插座平面图、一层弱电平面图、二层弱电平面图、三层弱电平面图、基础接地平面图、屋顶防雷平面图等
本方案为A3施工图+彩色效果图,拿到即可施工。

































































































