图纸介绍:本方案为经典三层双拼楼房设计图,经典外观,经典户型,三层带双露台,适合兄弟俩或父母、儿女一起居住,本套图纸面积适中,户型非常合理,设计师推荐图纸。
占地面积:19.04m*11.82m,225平方米左右,单户面积110平左右;
建筑层高:三层;
建筑高度:11.30米(含屋顶);
设计功能:
其中一栋的户型:
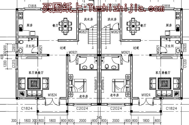
一 层:客厅、厨房、餐厅、卫生间、主卧(带卫生间)、洗衣房(储藏间);
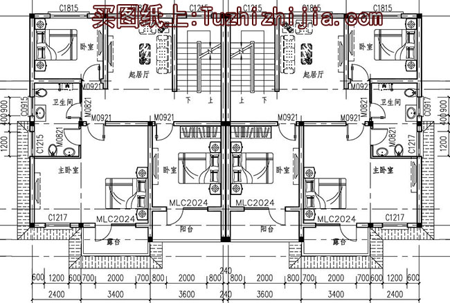
二 层:客厅、主卧(带卫生间、带露台)、卧室x2、卫生间、阳台;
三 层:主卧(带卫生间、带露台)、卧室x2、卫生间、大露台;
图纸目录:
建 筑 图:建筑设计说明、一层平面图、二层平面图、三层平面图、屋顶平面图、正立面图、背立面图、左立面图、右立面图、1-1剖面图、楼梯大样图、节点大样图、门窗大样图、门窗表等;
结 构 图:结构设计说明、基础平面布置图、一层柱配筋图、二层柱配筋图、三层柱配筋图、一层顶梁平法施工图、二层顶梁平法施工图、顶层梁平法施工图、一层顶板结构平面图、二层顶板结构平面图、顶层板结构平面图、楼梯配筋图等;
给排水图:给排水设计说明及实例、一层给排水平面图、二层给排水平面图、三层给排水平面图、卫生间大样图、给排水系统图等;
电 气 图:电气设计说明、电气设备材料表、等电位联结做法、配电系统图、弱电系统图、配电干线系统图、一层照明平面图、二层照明平面图、三层照明平面图、一层插座平面图、二层插座平面图、三层插座平面图、一层弱电平面图、二层弱电平面图、三层弱电平面图等;
全套A3施工图+彩色效果图,拿到即可施工。


































































































