图纸介绍:便宜双拼别墅设计图,造价实惠,起居互不打扰,别墅外观造型好看,时髦采用简约典雅的配色蓝色的屋顶搭配上砖红色的墙体看起来熠熠生辉,占地方正,更通透的户型,光照跟通风效果都不错。尤其是选择一层双拼别墅,造价实惠一般农村家庭都能承受得住没有压力不像城里的商品房一样,每年都要交各种费用,早乡下盖一栋别胡说,既可以照顾年老的父母,也可以留给将来的自己住。
占地面积:32.76m*14.1m,461.92平方米,单栋230.96平方米;
建筑层高:一层;
建筑高度:6.0米(含屋顶);
设计功能:
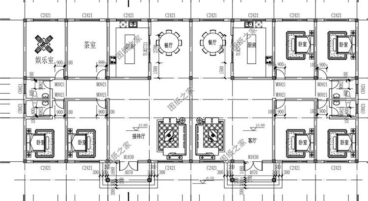
一层(一栋的户型):客厅、餐厅、厨房、卧室x3(或茶室、娱乐室)、卧室(带卫生间)、卫生间;
图纸目录:
建 筑 图:一层平面图、屋顶平面图、正立面图、背立面图、左立面图、右立面图、1-1剖面图、楼梯大样图、门窗表等;
结 构 图:基础平面布置图、一层柱配筋图、一层顶梁平法施工图、一层顶板结构平面图等;
给排水图:一层给排水平面图、给排水系统图等;
电 气 图:一层照明平面图、一层插座平面图、一层弱电平面图等;
全套图纸+高清效果图,拿到即可施工!



























































































