图纸介绍:这款别墅解决户型难题,一层双拼性价比高,建好房享一世繁华,别墅正面看上去就十分对称,设有双大门和大窗,采光好,空间大;简欧造型,大方时尚节省造价,屋顶带老虎窗,既丰富了造型,也丰富了采光,黄色真石漆外墙+红色屋顶,温馨浪漫。入户客厅面积较大,虽然只有一层,但是带三个卧室,一个卫生间一个衣帽间,还有一个储藏间,可以灵活运用。每个功能区域面积适中,是一款极好的一层双拼小别墅。
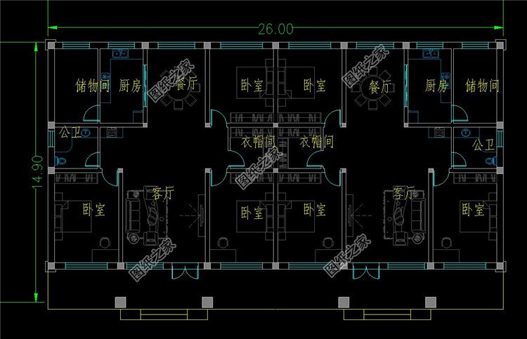
占地面积:26m*14.9m,468平方米,单栋234平方米;
建筑层高:一层;
建筑高度:7.35米(含屋顶);
设计功能:
一层(一栋的户型):客厅(兼容餐厅)、厨房、卧室x3、衣帽间、储藏间、卫生间;(配房:厨房、客厅、卧室(带卫生间))
图纸目录:
建 筑 图:一层平面图、屋顶平面图、正立面图、背立面图、左立面图、右立面图、1-1剖面图、楼梯大样图、门窗表等;
结 构 图:基础平面布置图、一层柱配筋图、一层顶梁平法施工图、一层顶板结构平面图等;
给排水图:一层给排水平面图、给排水系统图等;
电 气 图:一层照明平面图、一层插座平面图、一层弱电平面图等;
全套图纸+高清效果图,拿到即可施工!























































































