图纸介绍:带车库双拼别墅设计图,三层外观造型设计,室内空间利用率高,不可多得的好户型,别墅户型占地面积适中,欧式的外观,三层设计凸显大气,也保证了室内空间足够大,占地方正,设计有车库,平时会农村停车方便,入户门厅用双罗马柱装饰,豪华大气,整体外墙用米棕色涨势涂料装饰,搭配棕色窗框层次丰富。红色屋顶更显明艳亮丽。三层两个超大的露台是亮点,用于晾晒的同时,还有露天环境用于休闲和赏景,再合适不过。
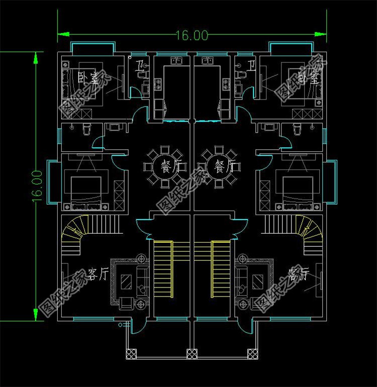
占地面积:16m*16m,256平方米,单户128平左右;
建筑层高:三层;
建筑高度:14.335米(含屋顶);
设计功能:
一层:车库、客厅、餐厅、厨房、卧室、卫生间;
二层:客厅、餐厅、厨房、卧室(带卫生间)、卧室、卫生间;
三层:客厅、卧室x3、书房、卫生间、露台;
图纸目录:
建 筑 图:建筑施工说明、建筑构造设计说明、一层平面图、二层平面图、三层平面图、屋顶平面图、正立面图、背立面图、左立面图、右立面图、1-1剖面图、楼梯大样图、节点大样图、门窗大样图、门窗表等;
结 构 图:结构设计说明、大样图、基础平面布置图、一层柱配筋图、二层柱配筋图、三层柱配筋图、一层顶梁平法施工图、二层顶梁平法施工图、顶层梁平法施工图、一层顶板结构平面图、二层顶板结构平面图、顶层板结构平面图、楼梯配筋图等;
给排水图:给排水设计说明、一层给排水平面图、二层给排水平面图、三层给排水平面图、卫生间大样图、给排水系统图等;
电 气 图:电气设计说明、电气设备材料表、等电位联结做法、配电系统图、弱电系统图、配电干线系统图、一层照明平面图、二层照明平面图、三层照明平面图、一层插座平面图、二层插座平面图、三层插座平面图、一层弱电平面图、二层弱电平面图、三层弱电平面图、基础接地平面图、屋顶防雷平面图等
本方案为A3施工图+彩色效果图,拿到即可施工。



























































































