图纸介绍:四层双拼复式大户型豪华别墅设计图,贵气浪漫气场强,是向往的生活田园的梦,别墅通过精巧的设计让整栋别墅大气体面,主人可以尊享宽绰的室内空间,轻松拥有比城市更舒适的乡居体验,为家中提供了足够的居住和实用空间。双开门的别墅更显出一种大别墅没有的精致体面,让人眼前一亮。
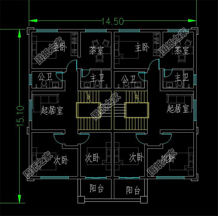
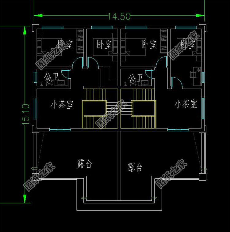
占地面积:14.5m*15.1m,188.5平方米;
建筑层高:四层;
建筑高度:16米(含屋顶);
设计功能:
一层户型:客厅x2、厨房x2、餐厅x2、卧室x2、卫生间x2;
二层户型:客厅上空x2、起居室x2、卧室(茶室、卫生间)x2、卧室x2、卫生间x2;
三层户型:起居室x2、卧室(茶室、卫生间)x2、卧室x4、卫生间x2、阳台起居室x2、卧室(茶室、卫生间)x2卧室x2、卫生间x2;
四层户型:卧室x4、小茶室x2、卫生间x2、露台x2;
图纸目录:
建筑图:建筑设计说明、一层平面图、二层平面图、三层平面图、四层平面图、屋顶平面图、正立面图、背立面图、左立面图、右立面图、1-1剖面图、楼梯大样图、门斗大样图、节点大样图、门窗表等;
结 构 图:结构设计说明、基础平面布置图、一层顶梁结构平面图、一层顶板结构平面图、二层顶梁结构平面图、二层顶板结构平面图、三层顶梁结构平面图、三层顶板结构平面图、坡屋顶梁结构平面图、坡屋顶板结构平面图、楼梯配筋大样图、节点大样图等;
给排水图:给排水设计说明、一层给排水平面图、二层给排水平面图、三层给排水平面图、四层给排水平面图、屋顶给排水平面图、卫生间大样图、给排水系统图等;
电 气 图:电气设计说明、配电系统图、弱电系统图、一层照明平面图、二层照明平面图、三层照明平面图、四层照明平面图、一层插座平面图、二层插座平面图、三层插座平面图、四层插座平面图、一层弱电平面图、二层弱电平面图、三层弱电平面图、四层弱电平面图、基础接地平面图、屋顶防雷平面图等;
本套图纸含全套A3施工图+高清效果图,拿到即可施工!



























































































