图纸介绍:本户型为农村四层双拼别墅房屋设计图,造型现代、大气,带屋顶露台,户型布局经典,本方案可以做三层或者四层,二三层户型一样。
占地面积:18.00m*12.00m,总220平方米左右,单户110平方米左右;
建筑层高:四层(二层和三层户型一样,可以建成三层);
建筑高度:16.30米(含屋顶);
设计功能:
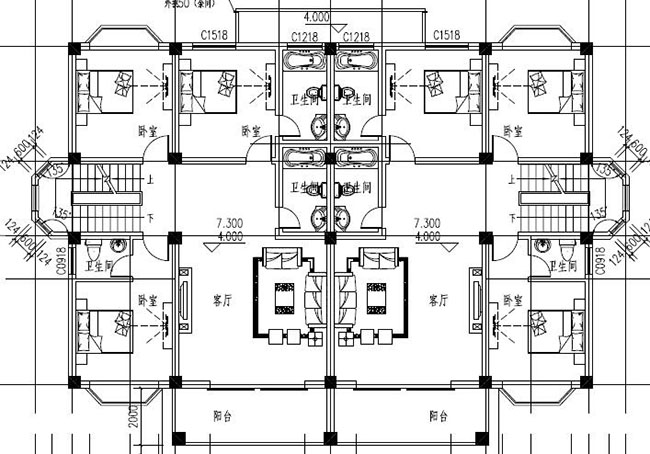
一层户型设计:客厅、餐厅、厨房、卫生间、主卧(带卫生间)、储藏间(可以不建);
二层户型设计:客厅、卧室x3(其中2个卧室带卫生间)、卫生间;
三层户型设计:同二层(可以不建,如不建总层数为三层)
三层(四层)户型设计:卧室x3(其中2个卧室带卫生间)、卫生间、大露台;
图纸目录:
建筑图:图纸目录、设计说明、工程做法、一层平面图、二层平面图、三层平面图、屋顶平面图、立面图x4、剖面图、节点大样图、门头大样图、楼梯大样图、门窗表;
结构图:图纸目录、结构设计说明、基础平面布置图、基础大样图、基础梁平面图、一层梁结构平面图、二层梁板结构平面图、屋顶梁结构平面图、一层结构平面图、二层结构平面图、屋顶结构平面图等;
给排水图:图纸目录、设计说明、一层给排水平面图、二层给排水平面图、三层给排水平面图、屋顶给排水平面图、给排水系统图;
电气图:图纸目录、设计说明、配电系统图、一层照明平面图、二层照明平面图、三层照明平面图、一层插座平面图、二层插座平面图、三层插座平面图、一层弱电平面图、二层弱电平面图、三层弱电平面图、接地平面图、屋顶防雷平面图。
本套图纸为全套A3图纸+高清效果图,拿到即可施工!






























































































