图纸介绍:本套图纸设计新颖,一层共用(父母住),二层兄弟俩一人一户,外观大气、美观,内部格局实用。
开间:14.96米 进深:11.36米
占地面积:180平米
建筑面积:360平米
设计功能:
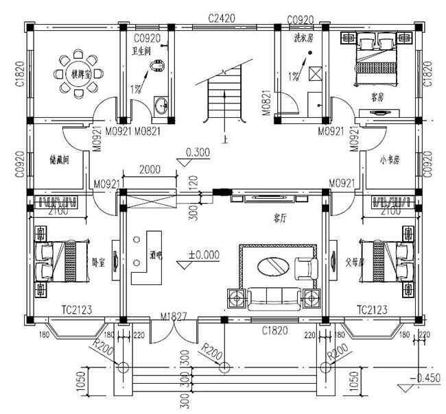
一层:客厅、父母房、客房x2、棋牌室、小书房、储藏间(衣帽间)、卫生间、洗衣间;
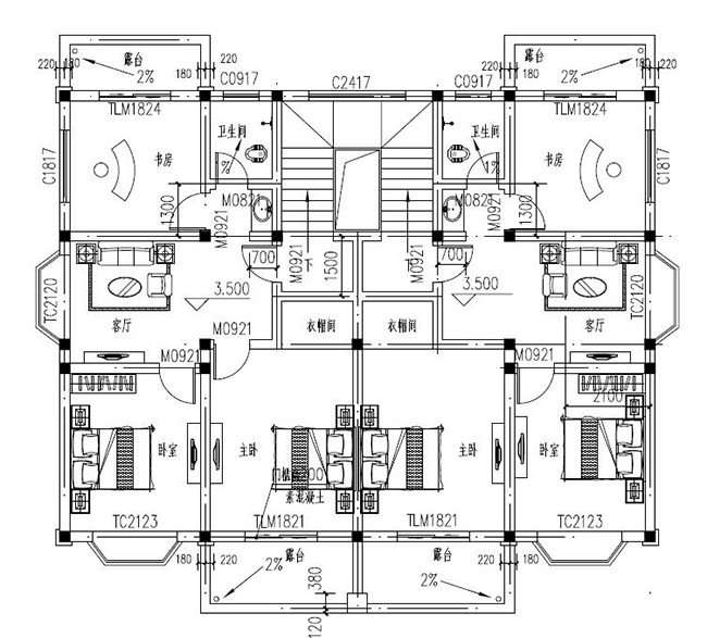
二层(一户):客厅、主卧(带衣帽间)、卧室、书房、卫生间;
图纸详情:
建施:建筑设计总说明、门窗表、一层平面图、二层平面图、屋顶平面图、东立面 图、南立面图、西立面图、北立面图、剖面图、楼梯平面图/剖面图、门窗 大样图、天沟大样图、门楼大样、檐沟大样;
结施:结构设计总说明、 基础大样、 一层及以下拄定位及配筋图、二层柱定位及配 筋图、二层以上拄定位及配筋图、基础梁配筋图、二层梁配筋图、二层板配 筋图、隔热层梁配筋图、隔热层板配筋图、屋面梁配筋图、屋面板配筋图、 楼梯配筋图;
水施:给排水设计说明、一层给排水平面图、二层给排水平面图、卫生间大样图、 给排水系统图;
电施:电气设计说明及图例、一层照明平面图、二层照明平面图、一层插座平面图 二层插座平面图、一层接地及弱电平面图、二层弱电平面图、屋顶防雷装置 平面图、配电系统图卫生间局部等电位联接示S详图、弱电系统图。


























































































