图纸介绍:小户型经济型三层双拼小别墅施工设计图纸,普通农村双拼楼房方案,造价低,单户100平以内,外立面选择暖黄色外墙砖,与蓝色的坡屋顶结合,整体配色有浓有淡。视觉感上,让建筑很沉稳。屋顶的老虎窗作为欧式别墅的经典元素,使得建筑整体风格更为纯粹完整。老虎窗提供的采光和通风能力也极大地优化了顶层室内空间的舒适性。
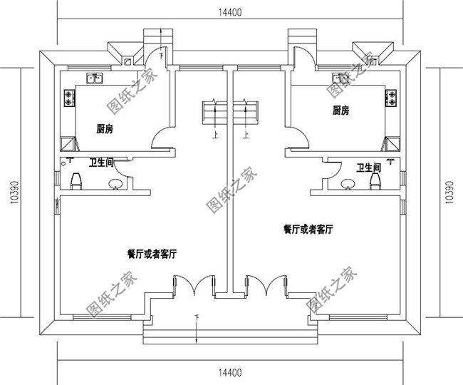
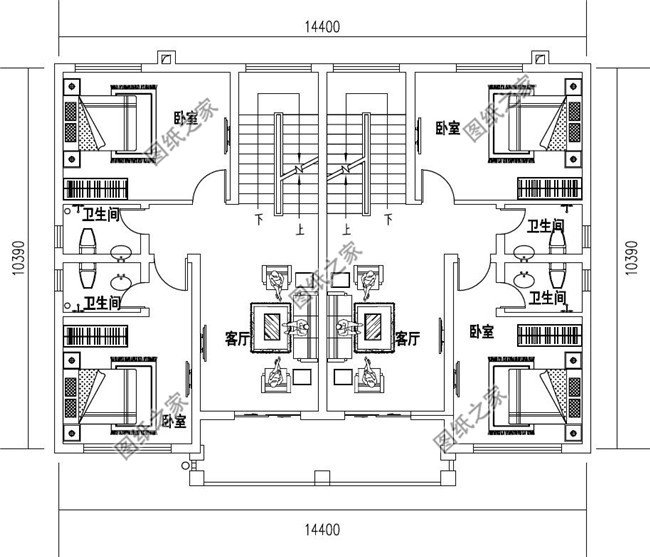
占地面积:14.4m*10.39m,150平方米左右,单户75平左右;
建筑层高:三层;
建筑高度:11.52米(含屋顶);
设计功能:
一层:餐厅或客厅、厨房、卫生间;
二层:客厅、卧室(带卫生间)、卧室、卫生间、阳台;
三层:备用房、卧室(带卫生间)、卧室、卫生间、露台;
图纸目录:
建 筑 图:建筑施工说明、建筑构造设计说明、一层平面图、二层平面图、三层平面图、屋顶平面图、正立面图、背立面图、左立面图、右立面图、1-1剖面图、楼梯大样图、节点大样图、门窗大样图、门窗表等;
结 构 图:结构设计说明、大样图、基础平面布置图、一层柱配筋图、二层柱配筋图、三层柱配筋图、一层顶梁平法施工图、二层顶梁平法施工图、顶层梁平法施工图、一层顶板结构平面图、二层顶板结构平面图、顶层板结构平面图、楼梯配筋图等;
给排水图:给排水设计说明、一层给排水平面图、二层给排水平面图、三层给排水平面图、卫生间大样图、给排水系统图等;
电 气 图:电气设计说明、电气设备材料表、等电位联结做法、配电系统图、弱电系统图、配电干线系统图、一层照明平面图、二层照明平面图、三层照明平面图、一层插座平面图、二层插座平面图、三层插座平面图、一层弱电平面图、二层弱电平面图、三层弱电平面图、基础接地平面图、屋顶防雷平面图等
本方案为A3施工图+彩色效果图,拿到即可施工。




























































































