图纸介绍:最新款240平方米三层别墅设计图,欧式双拼奢华大气图片,这款别墅的造型大方又不失华丽,欧式风格的房子在外观上给人一种大气宏伟的感觉。外立面采用清新柔美的米白色为主色调,造型简约,多露台阳台设计,装饰效果非常好,有拱形入户门廊、落地大窗富有时尚感,布局合理实用,室内采光通透
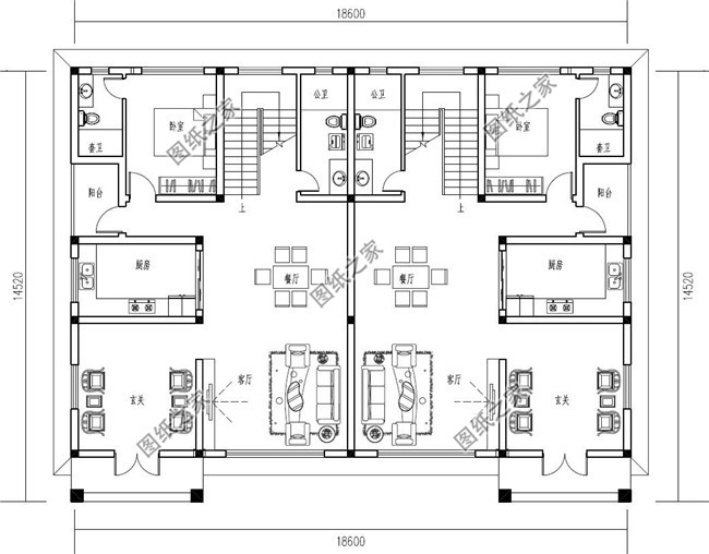
占地面积:18.6m*14.52m,240平方米左右,单户120平左右;
建筑层高:三层;
建筑高度:12.42米(含屋顶);
设计功能:
一层:玄关、客厅、餐厅、厨房、卧室(带卫生间)、卫生间、阳台;
二层:起居室、卧室(带卫生间)x2、阳台;
三层:卧室(带卫生间)、卧室(带卫生间衣帽间)、露台;
图纸目录:
建 筑 图:建筑施工说明、建筑构造设计说明、一层平面图、二层平面图、三层平面图、屋顶平面图、正立面图、背立面图、左立面图、右立面图、1-1剖面图、楼梯大样图、节点大样图、门窗大样图、门窗表等;
结 构 图:结构设计说明、大样图、基础平面布置图、一层柱配筋图、二层柱配筋图、三层柱配筋图、一层顶梁平法施工图、二层顶梁平法施工图、顶层梁平法施工图、一层顶板结构平面图、二层顶板结构平面图、顶层板结构平面图、楼梯配筋图等;
给排水图:给排水设计说明、一层给排水平面图、二层给排水平面图、三层给排水平面图、卫生间大样图、给排水系统图等;
电 气 图:电气设计说明、电气设备材料表、等电位联结做法、配电系统图、弱电系统图、配电干线系统图、一层照明平面图、二层照明平面图、三层照明平面图、一层插座平面图、二层插座平面图、三层插座平面图、一层弱电平面图、二层弱电平面图、三层弱电平面图、基础接地平面图、屋顶防雷平面图等
本方案为A3施工图+彩色效果图,拿到即可施工。

































































































