
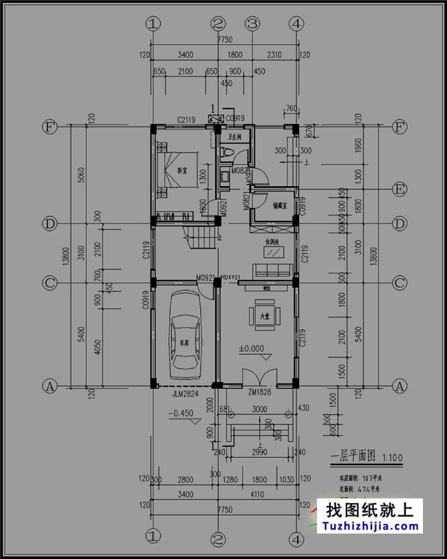
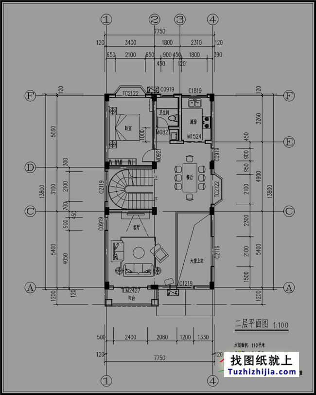
开间:7.75米 进深:13.8米
占地面积:107平米
建筑面积:474平米
结构类型:框架结构
造价预算:50万
规格数量:66张A3图纸+2张A4彩色效果图
设计功能:
—层:大堂、车库、休闲处、卧室、卫生间、储藏室;
二层:卧室、大堂上空、卫生间、厨房、餐厅、阳台;
三~四层:卧室X3、起居室、卫生间X2、阳台、天亭。
五层:卧室、活动室、卫生间、露台X2。
图纸详情
建施:建筑设计总说明、门窗表、一层平面图、二层平面图、三层平面图、四层平 面图、五层平面图、屋顶平面图、东立面图、南立面图、西立面图、北立面 图、剖面图、樹辟面图、门窗大样图、天沟大样图、门楼大样、腰线大样;
结施:结构设计总说明、基础平面布置图、基础大样图、一层及以下柱定位及配筋 图、二层拄定位及配筋图、三层拄定位及配筋图、四层拄定位及配筋图、五 层及以上拄定位及配筋图、基础梁配筋图、一层复式梁配筋图、一层复式板 酉己筋图、二层梁配筋图、二层板配筋图、三层梁配筋图、三层板配筋图、四 层梁配筋图、四层板配筋图、隔热层梁配筋图、隔热层板配筋图、屋面梁配 筋图、屋面板配筋图、楼梯配筋详图;
水施:给排水设计说明、一层给排水平面图、二层给排水平面图、 三层排水平面图 四层排水平面图、五层排水平面图、卫生间大样图、给排水系统图;
电施:电气设计说明及图例、一层照明平面图、二层照明平面图、三层照明平面图 四层照明平面图、五层照明平面图、一层插座平面图、二层插座平面图、三 层插座平面图、四层插座平面图、五层插座平面图、一层接地及弱电平面图 二层弱电平面图、三层弱电平面图、四层弱电平面图、五层弱电平面图、屋 顶防雷装置平面图、配电系统图卫生间局部等电位联接示意详图、弱电系统 图。

























































































