图纸介绍:本户型为占地300平四层别墅房屋设计图,含外观效果图,大面积、多卧室、户型布局整齐、空间利用率高。
占地面积:20.00m*15.10m,261平方米左右;
建筑层高:四层;
建筑高度:17.10米(含屋顶);
设计功能:
一层户型展示:大厅、会客厅、餐厅、厨房、主卧(带书房、衣帽间、卫生间)、卧室x2、卫生间;
二层户型展示:客厅、卧室x4(带衣帽间和卫生间)、露台;
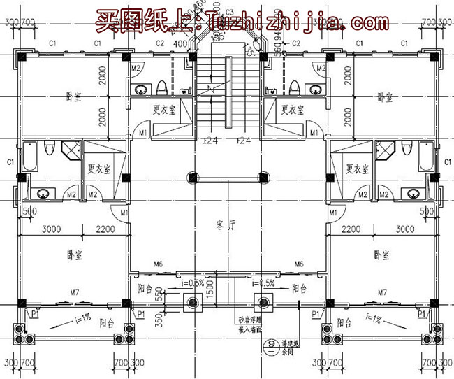
三层户型展示:客厅、卧室x4(带衣帽间和卫生间)、阳台x2;
四层户型展示:卧室(带衣帽间和卫生间)、卫生间、娱乐室、大露台;
图纸目录:
建筑图:建筑施工总说明、建筑构造设计说明、一层平面图、二层平面图、三层平面图、四层平面图、屋顶平面图、正立面图、背立面图、左立面图、右立面图、1-1剖面图、楼梯大样图、门斗大样图、节点大样图、门窗表等;
结 构 图:结构设计总说明、结构常用大样图、基础平面布置图、一层顶梁结构平面图、一层顶板结构平面图、二层顶梁结构平面图、二层顶板结构平面图、三层顶梁结构平面图、三层顶板结构平面图、坡屋顶梁结构平面图、坡屋顶板结构平面图、楼梯配筋大样图、节点大样图等;
给排水图:给排水设计总说明、一层给排水平面图、二层给排水平面图、三层给排水平面图、四层给排水平面图、屋顶给排水平面图、卫生间大样图、给排水系统图等;
电 气 图:电气设计说明、设备材料表、等电位联结做法、配电系统图、弱电系统图、一层照明平面图、二层照明平面图、三层照明平面图、四层照明平面图、一层插座平面图、二层插座平面图、三层插座平面图、四层插座平面图、一层弱电平面图、二层弱电平面图、三层弱电平面图、四层弱电平面图、基础接地平面图、屋顶防雷平面图等;
本套图纸含全套A3施工图+高清效果图,拿到即可施工!





















































































