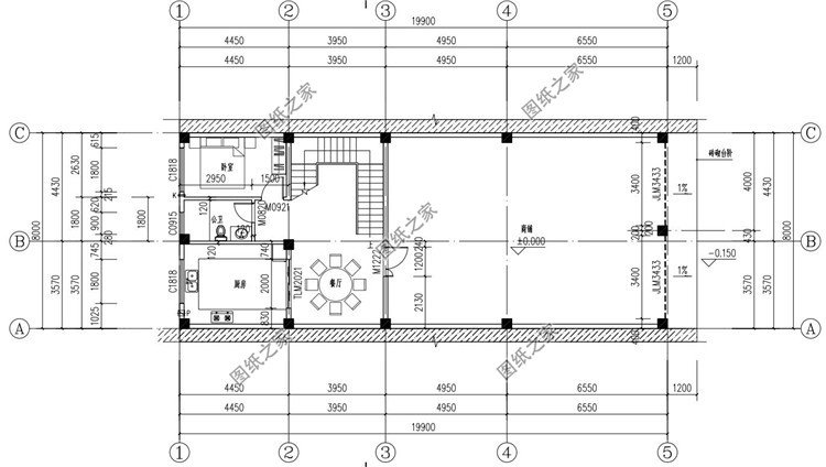
占地面积:19.9m*8m,159.2平方米左右;
建筑层高:四层;
建筑高度:20.122米(含屋顶);
设计功能:
一层户型:商铺、厨房、餐厅、卧室、卫生间;
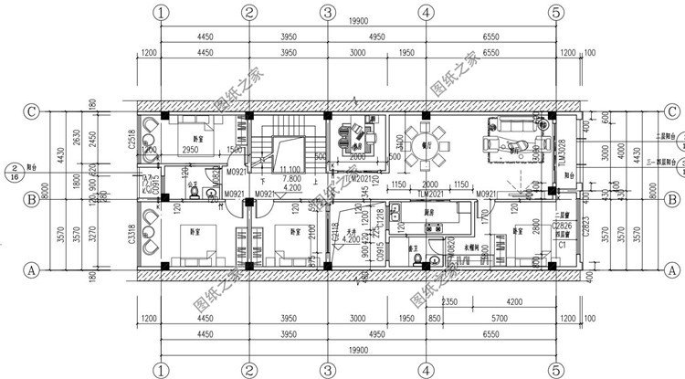
二层户型:客厅、厨房、餐厅、书房、卧室(带衣帽间,卫生间)、卧室x3、卫生间、阳台;
三层户型:客厅、厨房、餐厅、书房、卧室(带衣帽间,卫生间)、卧室x3、卫生间、阳台;
四层户型:客厅、厨房、餐厅、书房、卧室(带衣帽间,卫生间)、卧室x3、卫生间、阳台;
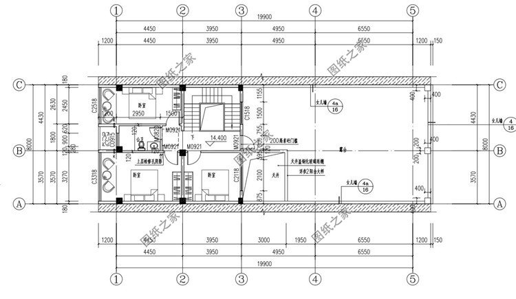
五层户型:卧室x3、卫生间、露台;


















































































