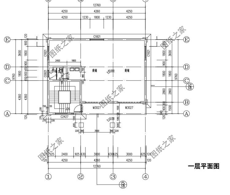
占地面积:12.76m*9.76m,117.24平方米左右;
建筑层高:四层;
建筑高度:16.688米(含屋顶);
设计功能:
一层户型:商铺、卫生间;
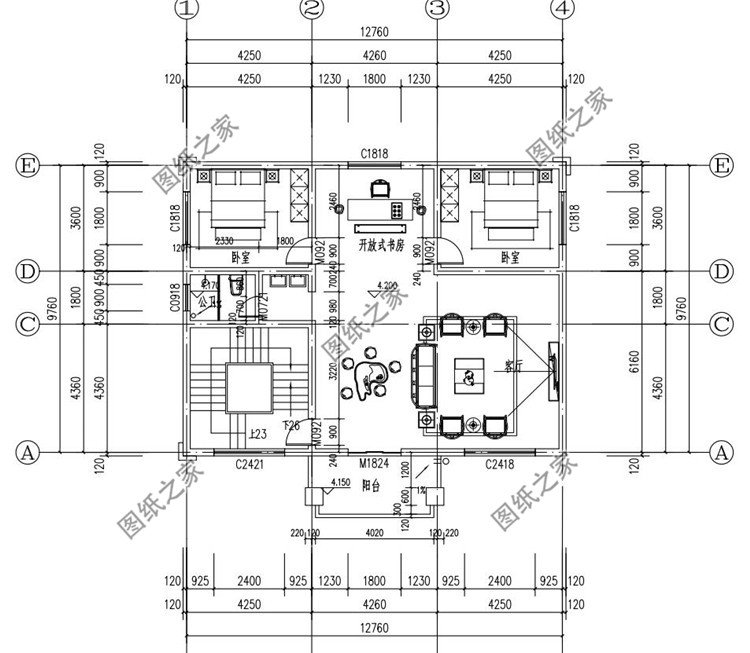
二层户型:客厅、卧室x2、开方式书房、卫生间、阳台;
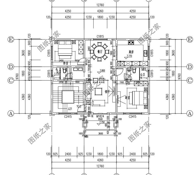
三层户型:客厅、厨房、餐厅、卧室(带卫生间)、卧室、卫生间、阳台;
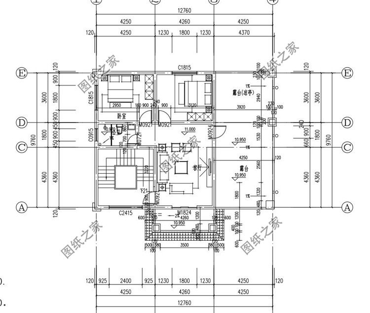
四层户型:客厅、卧室x2、卫生间、露台;








占地面积:12.76m*9.76m,117.24平方米左右;
建筑层高:四层;
建筑高度:16.688米(含屋顶);
设计功能:
一层户型:商铺、卫生间;
二层户型:客厅、卧室x2、开方式书房、卫生间、阳台;
三层户型:客厅、厨房、餐厅、卧室(带卫生间)、卧室、卫生间、阳台;
四层户型:客厅、卧室x2、卫生间、露台;















一、图纸均为高清蓝图,包含全套设计图,交给施工队可直接建造;
二、图纸每个数据都是环环相扣的,修改工作量大,还容易出错,不支持修改服务;
三、如果您对图纸的尺寸、户型不满意,我们可以按您的要求进行定制;
四、图纸通俗易懂,只需按图施工即可1比1还原效果图,我们还提供在线指导服务。
农村三间三层半别墅设计图,舒适宽敞时尚经济,居住生活方便舒
造价:53万
四层自建别墅设计图,有车库带露台,时尚大气给你一个五星级的
造价:53万
最火现代风三层半别墅设计图,时尚简约宽敞舒适
造价:48万
面宽8米两开间四层欧式风别墅,布局实用,小占地大精彩!
造价:28万
占地80平四层平顶别墅设计图,现代风房子效果图
造价:34万
高端大气的农村四层楼房别墅设计图,户型真不错,占地130多平
造价:43万
带框架层的四层别墅设计图,框架层功能布局很多,很实用
造价:65万
四层巴洛克别墅设计图,旋转楼梯搭配超大挑空客厅,很有气势
造价:38万
现代风平屋顶三层半农村小别墅设计图,面宽仅7米
造价:31~35万
复式别墅农村四层霸气豪宅设计图纸,建好你就是村里第一
造价:49万
乡村别墅现代风平屋顶四层自建房设计图,简约时尚
造价:46万
四层农村别墅设计图,一二层都有厨房和餐厅的户型方案
造价:47万
带商铺的四层自建别墅设计图纸(一层商铺二三四住宅)
造价:46万
两开间四层带商铺自建房屋设计图纸及效果图
造价:76万
最新高端四层别墅外观效果图及全套设计图,真土豪就这样建
造价:56万
农村四层楼房设计图及外观效果图,造价60万左右
造价:58万
农村三层半自建房子效果图及设计图,户型占地90平方米左右
造价:34万
四层别墅豪宅外观效果图及全套施工图,高端欧式风格
造价:60万
乡村高档四层别墅楼设计图,二三层复式挑空客厅
造价:42万
高端大气三层半别墅客厅挑空设计,豪华农村自建房图
造价:50万
乡墅建房三层半别墅设计图纸,农村四层豪宅户型方案图
造价:55万
四层新农村复式别墅自建房设计图,外观对称设计,旋转楼梯
造价:48万
小面宽的农村简单四层2建平屋顶别墅设计图,农村自建房首选
造价:39万
农村大气四层楼房图片及全套设计图纸,复式客厅旋转楼梯
造价:38万
新农村小户型4层自建房三层半别墅设计图,平屋顶设计
造价:30万
乡村高档四层豪华别墅自建房设计图,一层不带餐厅厨房户型
造价:50万左右
简欧式三层半(4层)农村自建房别墅设计图效果图,带车库户型
造价:40万
12X14米四层农村自建别墅设计图,功能设计丰富齐全
造价:44万左右
新款农村四层复式别墅设计图纸及效果图,外立面清新别致
造价:40万
四层(三层半)复式别墅设计图片大全,欧式风格
造价:46万
乡村高档四层豪华别墅自建房设计图,一层不带餐厅厨房户型
造价:50万左右
四层新农村复式别墅自建房设计图,外观对称设计,旋转楼梯
造价:48万
带商铺的四层自建别墅设计图纸(一层商铺二三四住宅)
造价:46万
欧式四层(三层半)独栋别墅设计图复式,设计豪华时尚
造价:50万左右
农村四层楼房设计图,复式结构、客厅中空,外观效果图+全套图
造价:40万-45万
高端大气的农村四层楼房别墅设计图,户型真不错,占地130多平
造价:43万
新农村四层独栋复式别墅设计图,设计豪华时尚
造价:50万左右
农村三间四层别墅房屋设计图,含外观效果图片
造价:70~80万
四层简单新农村房屋设计图纸,造价低,适合农村自建
造价:50万左右
现代风平屋顶三层半农村小别墅设计图,面宽仅7米
造价:31~35万
农村四层复式房屋设计图纸,占地105平方米预算35万左右
造价:34~38万
新农村平屋顶四层房屋(三层半楼房)设计图,带屋顶花园(露台
造价:45万
2026新款农村四层别墅设计图纸户型图,带挑空客厅
造价:55万左右
95平方米农村四层房屋设计图,8米X11米 ,预算37万
造价:37~41万
新农村小户型4层自建房三层半别墅设计图,平屋顶设计
造价:30万
最新高端四层别墅外观效果图及全套设计图,真土豪就这样建
造价:56万
四层豪华欧式别墅自建楼房设计图纸,带效果图和全套施工图
造价:60万
四层复式别墅设计方案,外观气派布局实用,舒适宜居美极了!
造价:69万
三层半复式别墅设计方案,全套设计图+效果图
造价:48~55万
140平方米三层半新农村房屋别墅设计图,带车库
造价:55万
130平米最新气派农村四层楼房设计图,四层楼房图片
造价:50万左右
乡村别墅现代风平屋顶四层自建房设计图,简约时尚
造价:46万
140平方米新农村四层房屋设计图纸,农村自建推荐
造价:45万左右
农村三层半自建房子效果图及设计图,户型占地90平方米左右
造价:34万
300平四层别墅房屋设计图,含外观效果图,大面积、多卧室
造价:100万左右
120平方米新农村四层房屋设计图纸和效果图
造价:41~43万
农村四层楼房设计图及外观效果图,造价60万左右
造价:58万
农村四层复式楼房设计图,外观效果图+全套图纸
造价:33~40万
农村大气四层楼房图片及全套设计图纸,复式客厅旋转楼梯
造价:38万
最火现代风三层半别墅设计图,时尚简约宽敞舒适
造价:48万
大气豪华四层别墅设计图纸,占地180平米左右
占地:180平方米
一层带商铺的四层楼房别墅设计图纸和效果图,房屋户型图
占地:133平方米
高端大气四层复式别墅房屋设计图,含外观效果图
占地:270平方米
高端欧式四层别墅房屋施工图纸及效果图,圆弧大窗
占地:170平方米
四层自建别墅设计图,有车库带露台,时尚大气给你一个五星级的
占地:152.51平方米
新农村四层房屋设计图纸,高端大气,占地150平方米
占地:150平方米
新款私人定制四层欧式独栋住宅别墅设计图纸,含外观效果图
占地:138平方米左右
四层豪华别墅设计图及效果图,高端房屋设计方案
占地:250平方米
最新高端四层别墅外观效果图及全套设计图,真土豪就这样建
占地:174.08平方米
农村三间四层楼房设计图,农村轻奢型四层别墅
占地:160平方米
四层复式别墅设计方案,外观气派布局实用,舒适宜居美极了!
占地:204.64平方米
乡村高档四层豪华别墅自建房设计图,一层不带餐厅厨房户型
占地:147平方米
新农村四层独栋复式别墅设计图,设计豪华时尚
占地:140平方米
新农村140平米楼房图四层独栋别墅设计图,简欧外观风格设计
占地:141平方米
高端大气三层半别墅客厅挑空设计,豪华农村自建房图
占地:179.52平方米
现代新中式四层复式别墅房屋设计图,旋转楼梯,含效果图
占地:150平方米
114平方米农村四层别墅设计图纸及效果图,11X11米
占地:114平方米
300平四层别墅房屋设计图,含外观效果图,大面积、多卧室
占地:261平方米
新款农村四层复式别墅设计图纸及效果图,外立面清新别致
占地:207平方米
带车库四层别墅外观效果图及设计图纸,户型方正通透
占地:115平方米
