图纸介绍:四层新农村复式别墅自建房设计图,外观对称设计,旋转楼梯户型,豪华到令人羡慕!经典沉稳的外观造型与厚重简约的立柱设计,整栋建筑威严庄重自带气场。一层大堂屋和挑空的客厅设计,非常的气派,传统和现代相互结合设计,正是符合新农村建房的标准;二层设有两间卧室带套卫,室内客厅和生活阳台;三层有三室一厅两卫,设有一间棋牌室,是日常的娱乐场所,外配阳台3个,四层有一间卧室带独立卫生间,带茶室,营造一种文人雅致的闲适意境。室外双露台设计,满足晾晒和休闲的需求。
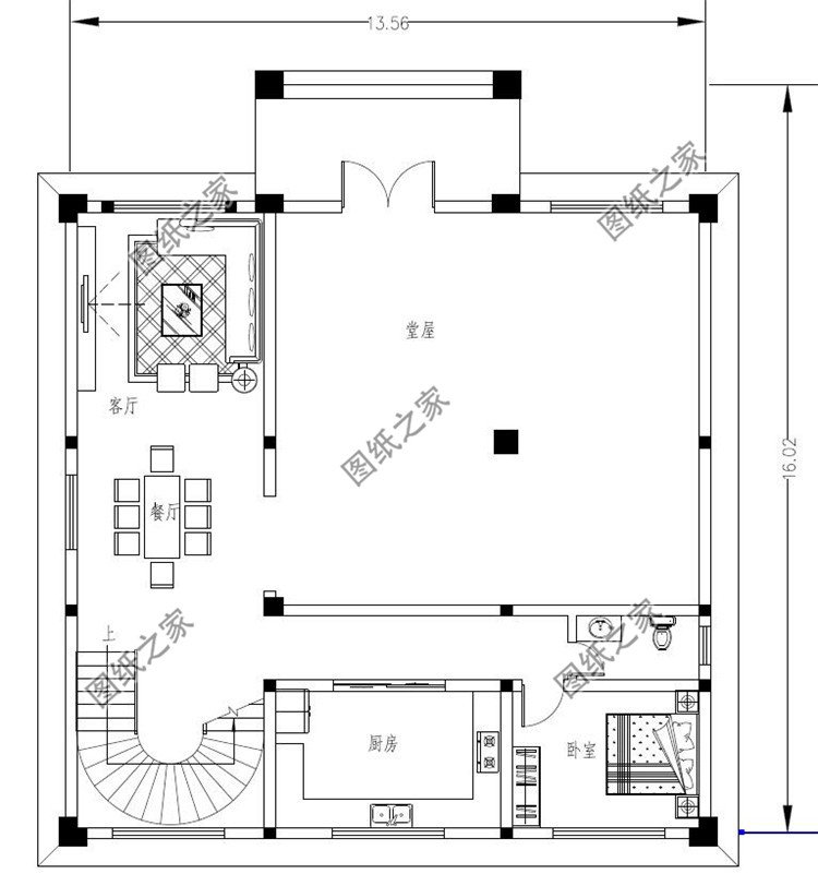
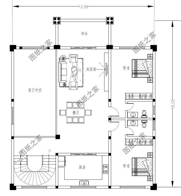
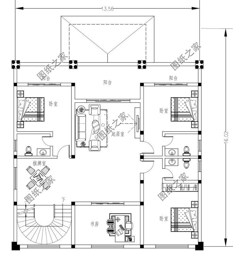
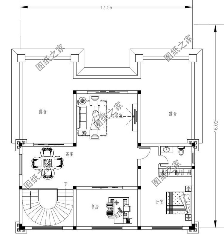
占地面积:13.56m*16.02m,188.23平方米左右;
建筑层高:四层;
建筑高度:16.08米(含屋顶);
设计功能:
一层户型:堂屋、客厅、厨房、餐厅、卧室、卫生间;
二层户型:客厅上空、起居室、厨房、餐厅、卧室(带卫生间)x2、阳台;
三层户型:起居室、棋牌室、书房、卧室(带卫生间)x3、阳台x3;
四层户型:起居室、书房、茶室、卧室(带卫生间)、露台x2;
图纸目录:
建筑图:建筑设计说明、一层平面图、二层平面图、三层平面图、四层平面图、屋顶平面图、正立面图、背立面图、左立面图、右立面图、1-1剖面图、楼梯大样图、门斗大样图、节点大样图、门窗表等;
结 构 图:结构设计说明、基础平面布置图、一层顶梁结构平面图、一层顶板结构平面图、二层顶梁结构平面图、二层顶板结构平面图、三层顶梁结构平面图、三层顶板结构平面图、坡屋顶梁结构平面图、坡屋顶板结构平面图、楼梯配筋大样图、节点大样图等;
给排水图:给排水设计说明、一层给排水平面图、二层给排水平面图、三层给排水平面图、四层给排水平面图、屋顶给排水平面图、卫生间大样图、给排水系统图等;
电 气 图:电气设计说明、配电系统图、弱电系统图、一层照明平面图、二层照明平面图、三层照明平面图、四层照明平面图、一层插座平面图、二层插座平面图、三层插座平面图、四层插座平面图、一层弱电平面图、二层弱电平面图、三层弱电平面图、四层弱电平面图、基础接地平面图、屋顶防雷平面图等;


















































































