图纸介绍:四层复式别墅设计图片大全,欧式风格,高耸大气,十分气派,外墙采用统一的颜色装饰,简单而大方,正立面高低错落的结构设计,给人一种丰富的视觉感,门头立柱方形设计,二三层南北两层多处设计小阳台,而且窗户也是配置很多,屋顶还带阳光房,室内采光度高,屋顶有露台设计,方便农村晾晒东西,同时也可以做屋顶花园,欣赏室外风景等。
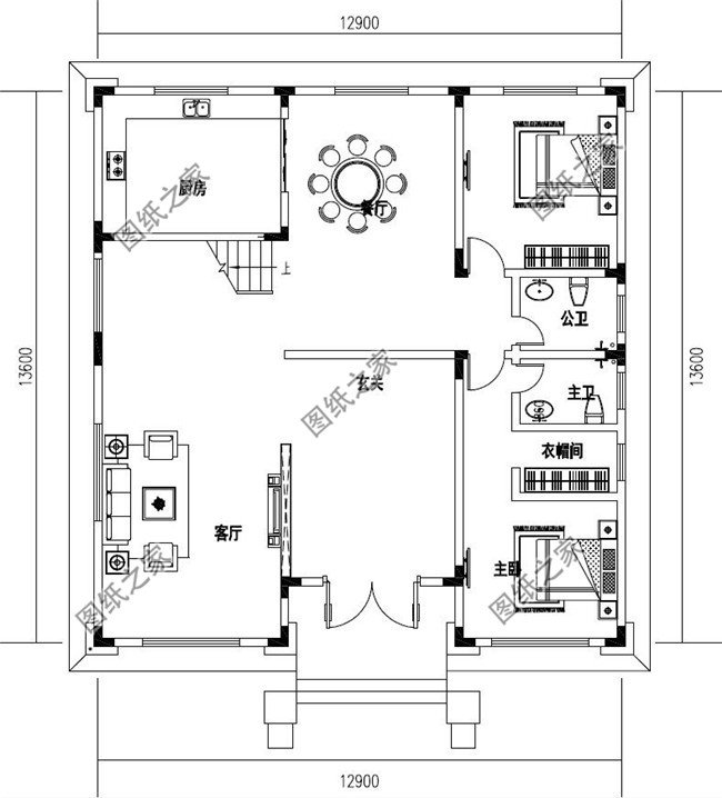
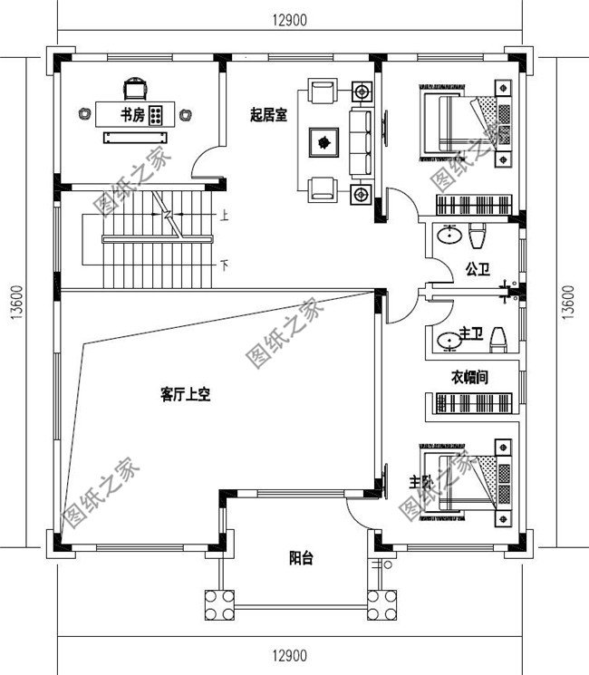
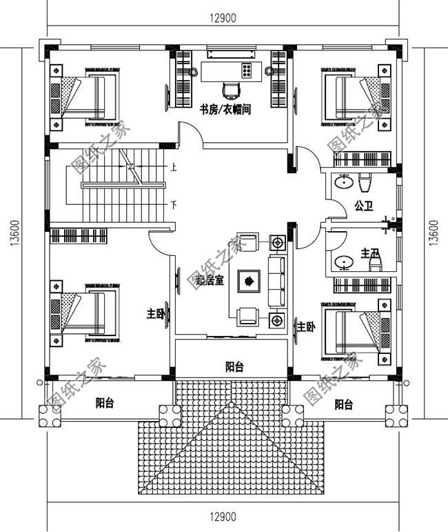
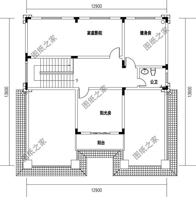
占地面积:12.9m*13.6m,174平方米左右;
建筑层高:四层;
建筑高度:15.72米(含屋顶);
设计功能:
一层户型:玄关、客厅、厨房、餐厅、卧室(带衣帽间)、卧室、卫生间;
二层户型:客厅上空、起居室、书房、主卧(带卫生间衣帽间)、卧室、卫生间、阳台;
三层户型:起居室、书房/衣帽间、卧室(带卫生间)、卧室x3、卫生间、阳台;
四层户型:家庭影院、健身房、阳光房、卫生间、阳台。露台;
图纸目录:
建筑图:建筑设计说明、一层平面图、二层平面图、三层平面图、四层平面图、屋顶平面图、正立面图、背立面图、左立面图、右立面图、1-1剖面图、楼梯大样图、门斗大样图、节点大样图、门窗表等;
结 构 图:结构设计说明、基础平面布置图、一层顶梁结构平面图、一层顶板结构平面图、二层顶梁结构平面图、二层顶板结构平面图、三层顶梁结构平面图、三层顶板结构平面图、坡屋顶梁结构平面图、坡屋顶板结构平面图、楼梯配筋大样图、节点大样图等;
给排水图:给排水设计说明、一层给排水平面图、二层给排水平面图、三层给排水平面图、四层给排水平面图、屋顶给排水平面图、卫生间大样图、给排水系统图等;
电 气 图:电气设计说明、配电系统图、弱电系统图、一层照明平面图、二层照明平面图、三层照明平面图、四层照明平面图、一层插座平面图、二层插座平面图、三层插座平面图、四层插座平面图、一层弱电平面图、二层弱电平面图、三层弱电平面图、四层弱电平面图、基础接地平面图、屋顶防雷平面图等;
本套图纸含全套A3施工图+高清效果图,拿到即可施工!



















































































