图纸介绍:乡墅建房三层半别墅设计图纸,农村四层豪宅户型方案图推荐!这款户型的墙面装饰有用到少量的浅黄色文化石,还有大面积的米黄色真石漆装饰,屋顶用砖红色琉璃瓦,背面镶嵌有多个窗户,加强室内采光,窗户之间可用浮雕装饰,能加强美观性。多边形窗的使用,同样能加强造型的立体感,且室内采光更好,大门处的门厅设计很重要,配以方形罗马柱很大气。屋面的俯瞰效果,同样很让人心动,尤其是搭配凉亭,效果更好。
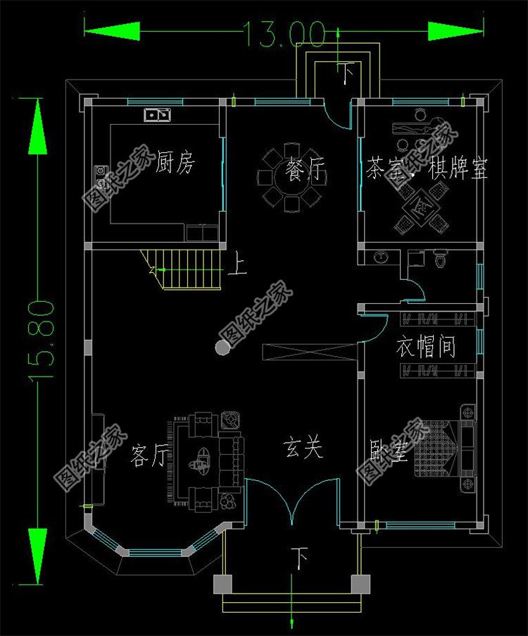
占地面积:13m*15.8m,185.04平方米左右;
建筑层高:四层;
建筑高度:16.144米(含屋顶);
设计功能:
一层户型:玄关、客厅、厨房、餐厅、茶室(棋牌室)、卧室(带衣帽间)、卫生间;
二层户型:客厅、书房、卧室(带卫生间)、卧室x3、卫生间、阳台;
三层户型:客厅、书房、卧室(带卫生间)、卧室x3、卫生间、阳台;
四层户型:书房、卧室x2、卫生间、露台、凉亭;
图纸目录:
建筑图:建筑设计说明、一层平面图、二层平面图、三层平面图、四层平面图、屋顶平面图、正立面图、背立面图、左立面图、右立面图、1-1剖面图、楼梯大样图、门斗大样图、节点大样图、门窗表等;
结 构 图:结构设计说明、基础平面布置图、一层顶梁结构平面图、一层顶板结构平面图、二层顶梁结构平面图、二层顶板结构平面图、三层顶梁结构平面图、三层顶板结构平面图、坡屋顶梁结构平面图、坡屋顶板结构平面图、楼梯配筋大样图、节点大样图等;
给排水图:给排水设计说明、一层给排水平面图、二层给排水平面图、三层给排水平面图、四层给排水平面图、屋顶给排水平面图、卫生间大样图、给排水系统图等;
电 气 图:电气设计说明、配电系统图、弱电系统图、一层照明平面图、二层照明平面图、三层照明平面图、四层照明平面图、一层插座平面图、二层插座平面图、三层插座平面图、四层插座平面图、一层弱电平面图、二层弱电平面图、三层弱电平面图、四层弱电平面图、基础接地平面图、屋顶防雷平面图等;














































































