图纸介绍:本户型为四层楼房设计图,客厅挑空,带多个露台,外观时尚、漂亮,色彩搭配协调,在乡村自建一套,都可以成为一道亮丽的风景线,内部布局合理,复式结构让客厅显得高端、敞亮。
占地面积:14.0m*10.0m,140平方米左右;
建筑层高:四层;
建筑高度:16.20米(含屋顶);
设计功能:
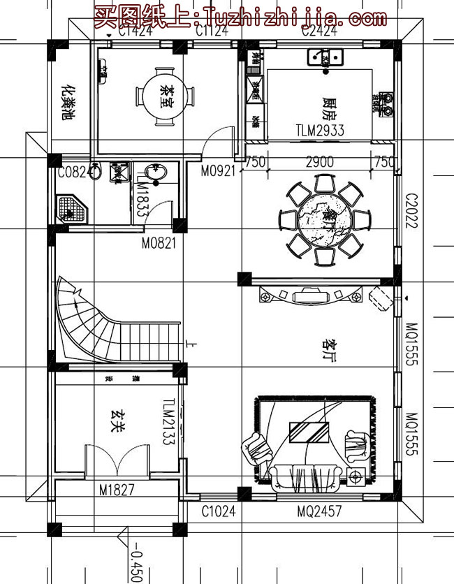
一层户型展示:客厅、餐厅、厨房、卫生间、茶室(可以做卧室);
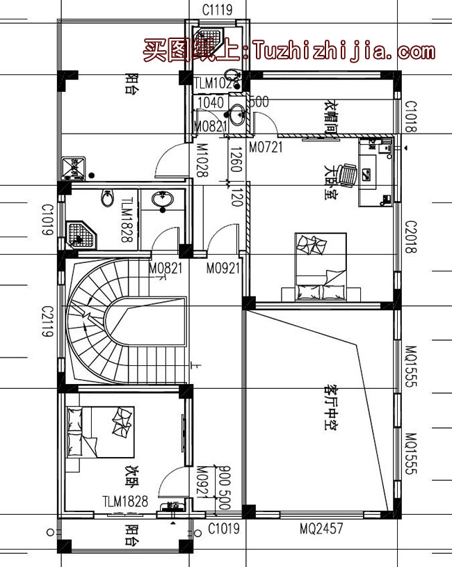
二层户型展示:主卧(带卫生间、带衣帽间、带大阳台)、卧室(带小阳台)、卫生间;
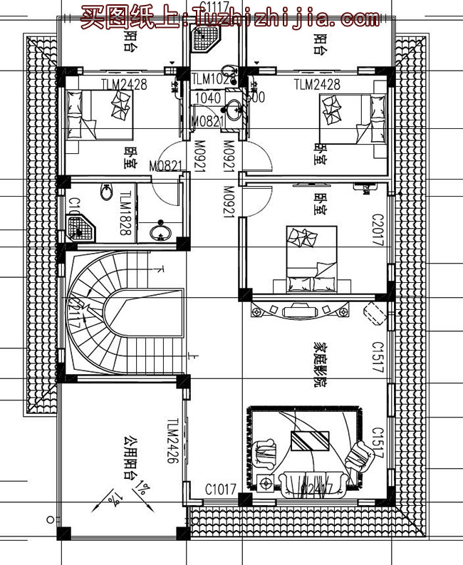
三层户型展示:家庭影院、主卧(带卫生间)、卧室x2、卫生间、阳台x3;
四层户型展示:卧室x2,卫生间、露台x4;
图纸目录:
建筑图:建筑施工总说明、建筑构造设计说明、一层平面图、二层平面图、三层平面图、四层平面图、屋顶平面图、正立面图、背立面图、左立面图、右立面图、1-1剖面图、楼梯大样图、门斗大样图、节点大样图、门窗表等;
结 构 图:结构设计总说明、结构常用大样图、基础平面布置图、一层顶梁结构平面图、一层顶板结构平面图、二层顶梁结构平面图、二层顶板结构平面图、三层顶梁结构平面图、三层顶板结构平面图、坡屋顶梁结构平面图、坡屋顶板结构平面图、楼梯配筋大样图、节点大样图等;
给排水图:给排水设计总说明、一层给排水平面图、二层给排水平面图、三层给排水平面图、四层给排水平面图、屋顶给排水平面图、卫生间大样图、给排水系统图等;
电 气 图:电气设计说明、设备材料表、等电位联结做法、配电系统图、弱电系统图、一层照明平面图、二层照明平面图、三层照明平面图、四层照明平面图、一层插座平面图、二层插座平面图、三层插座平面图、四层插座平面图、一层弱电平面图、二层弱电平面图、三层弱电平面图、四层弱电平面图、基础接地平面图、屋顶防雷平面图等;
本套图纸含全套A3施工图+高清效果图,拿到即可施工!




















































































