图纸介绍:本户型为带电梯高端四层别墅设计图,复式客厅,外观高端、大气,上档次,两块宽大的落地窗,多处罗马柱装饰,处处体现豪华之气。本方案房间较多,但布局非常整齐,适合大户家庭,四层主要用于娱乐健身,影音室配投影,看电影效果绝对好,健身房可以练练瑜伽,锻炼下身体,顶楼宽阔的露台不仅可以喝茶聊天,晚上还可以观赏夜景,让人在劳累了一天之后可以完全放松,享受生活。
占地面积:17.50m*13.05m,220平方米左右;
建筑层高:四层;
建筑高度:17.57米(含屋顶);
设计功能:
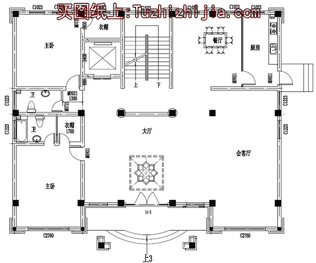
一层户型展示:大厅、会客厅、餐厅、厨房、主卧(带衣帽间、卫生间)、卧室(带衣帽间)、卫生间、电梯;
二层户型展示:客厅上空、卧室x3(带卫生间和衣帽间)、书房、卫生间、露台;
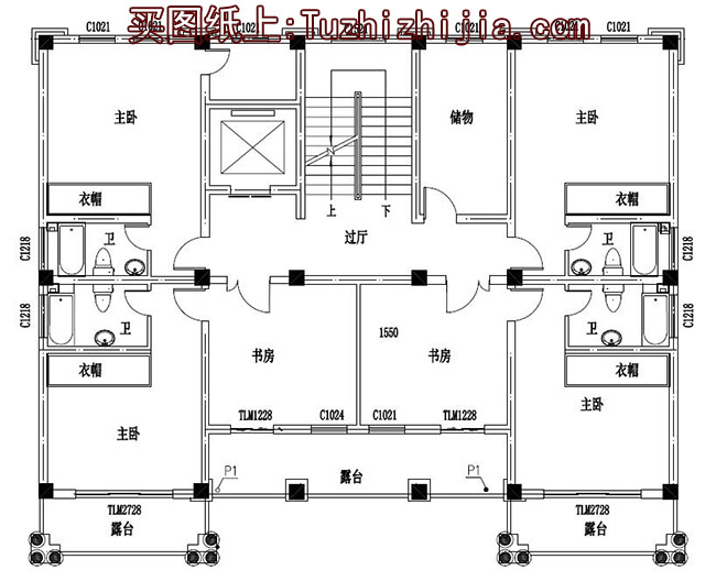
三层户型展示:过厅、卧室x4(带衣帽间和卫生间)、书房x2、储物间、露台x3;
四层户型展示:影音室、储藏间、健身房、大露台;
图纸目录:
建筑图:建筑设计说明、一层平面图、二层平面图、三层平面图、四层平面图、屋顶平面图、正立面图、背立面图、左立面图、右立面图、1-1剖面图、楼梯大样图、门斗大样图、节点大样图、门窗表等;
结 构 图:结构设计说明、基础平面布置图、一层顶梁结构平面图、一层顶板结构平面图、二层顶梁结构平面图、二层顶板结构平面图、三层顶梁结构平面图、三层顶板结构平面图、坡屋顶梁结构平面图、坡屋顶板结构平面图、楼梯配筋大样图、节点大样图等;
给排水图:给排水设计说明、一层给排水平面图、二层给排水平面图、三层给排水平面图、四层给排水平面图、屋顶给排水平面图、卫生间大样图、给排水系统图等;
电 气 图:电气设计说明、配电系统图、弱电系统图、一层照明平面图、二层照明平面图、三层照明平面图、四层照明平面图、一层插座平面图、二层插座平面图、三层插座平面图、四层插座平面图、一层弱电平面图、二层弱电平面图、三层弱电平面图、四层弱电平面图、基础接地平面图、屋顶防雷平面图等;
本套图纸含全套A3施工图+高清效果图,拿到即可施工!

















































































