图纸介绍:本方案为小户型兄弟双拼别墅房屋设计图,带外观效果图,本方案以实用为主,造价低,小户型,满足大部分家庭自建。
占地面积:15.0m*10.0m,150平方米左右;
建筑层高:三层;
建筑高度:12.30米(含屋顶);
设计功能:
一 层:客厅、厨房、餐厅、卫生间、储藏室;
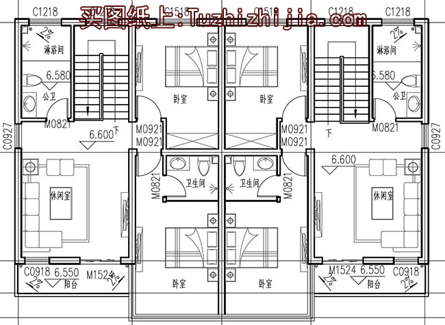
二 层:卧室x2(带卫生间)、书房、卫生间、阳台;
三 层:客厅、主卧(带卫生间)、卧室、卫生间;
图纸目录:
建 筑 图:建筑设计说明、一层平面图、二层平面图、三层平面图、屋顶平面图、正立面图、背立面图、左立面图、右立面图、1-1剖面图、楼梯大样图、节点大样图、门窗大样图、门窗表等;
结 构 图:结构设计说明、大样图、基础平面布置图、一层柱配筋图、二层柱配筋图、三层柱配筋图、一层顶梁平法施工图、二层顶梁平法施工图、顶层梁平法施工图、一层顶板结构平面图、二层顶板结构平面图、顶层板结构平面图、楼梯配筋图等;
给排水图:给排水设计说明、一层给排水平面图、二层给排水平面图、三层给排水平面图、卫生间大样图、给排水系统图等;
电 气 图:电气设计说明、一层照明平面图、二层照明平面图、三层照明平面图、一层插座平面图、二层插座平面图、三层插座平面图、一层弱电平面图、二层弱电平面图、三层弱电平面图、基础接地平面图等;
包含全套A3设计图+高清效果图,直接可以施工。





























































































