图纸介绍:新农村双拼堂屋共用的兄弟自建别墅施工设计图纸及效果图,这款三层欧式双拼别墅十分的气派适合兄弟两个一起建造,村里人看了一定会说很有出息。主体使用暖白色真石漆装饰,一层是浅褐色面砖,屋顶是蓝色砖瓦。多阳台多露台的设计让别墅很有层次感,大面积落地窗和金色的雕花让别墅更加具有观赏性,共用堂屋设计符合农村生活习俗
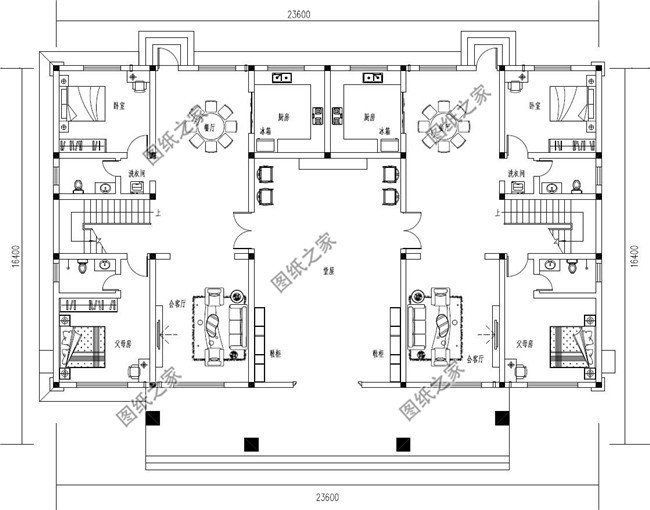
占地面积:23.6m*16.4m,334平方米左右,单户167平左右;
建筑层高:三层;
建筑高度:12.87米(含屋顶);
设计功能:
一层:堂屋、会客厅、餐厅、厨房、父母房(带卫生间)、卧室、洗衣间、卫生间;
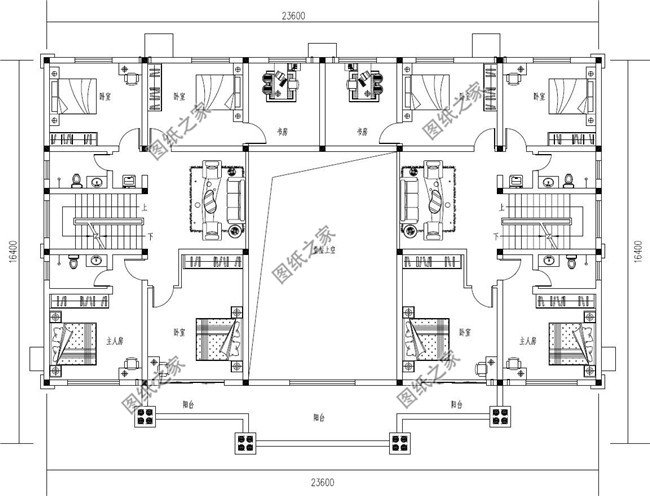
二层:堂屋上空、起居室、书房、卧室(带卫生间)、卧室x3、卫生间、洗衣间、阳台;
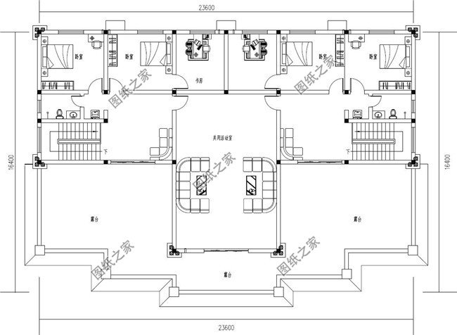
三层:共用活动室、休闲区、卧室x2、书房、洗衣间、卫生间、露台;
图纸目录:
建 筑 图:建筑施工说明、建筑构造设计说明、一层平面图、二层平面图、三层平面图、屋顶平面图、正立面图、背立面图、左立面图、右立面图、1-1剖面图、楼梯大样图、节点大样图、门窗大样图、门窗表等;
结 构 图:结构设计说明、大样图、基础平面布置图、一层柱配筋图、二层柱配筋图、三层柱配筋图、一层顶梁平法施工图、二层顶梁平法施工图、顶层梁平法施工图、一层顶板结构平面图、二层顶板结构平面图、顶层板结构平面图、楼梯配筋图等;
给排水图:给排水设计说明、一层给排水平面图、二层给排水平面图、三层给排水平面图、卫生间大样图、给排水系统图等;
电 气 图:电气设计说明、电气设备材料表、等电位联结做法、配电系统图、弱电系统图、配电干线系统图、一层照明平面图、二层照明平面图、三层照明平面图、一层插座平面图、二层插座平面图、三层插座平面图、一层弱电平面图、二层弱电平面图、三层弱电平面图、基础接地平面图、屋顶防雷平面图等
本方案为A3施工图+彩色效果图,拿到即可施工。






























































































