图纸介绍:造型非常漂亮的二层别墅设计图,客厅中空,带车库,设计师推荐。
开间:14.7 进深:13.2米
占地面积:173平米
建筑面积:323平米
造价预算:35万
设计功能:
一层:玄关、车库、客厅、厨房、餐厅、卧室、卫生间、多功能房(自定义功能)、车库;
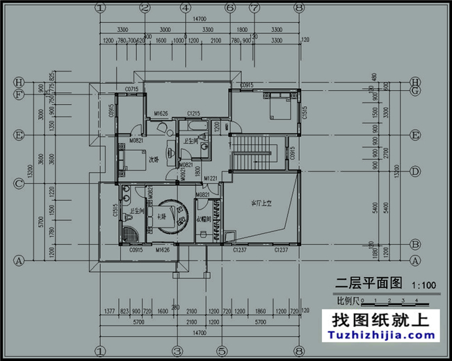
二层:客厅上空、主卧(带卫生间和衣帽间)、卧室(带衣帽间)、卧室、卫生间、露台。
图纸详情:
建施:一层平面图、二层平面图、屋顶平面图、东立面图、南立面图、西立面图、 北立面图、剖面图、楼梯剖面图、大样图;
结施:结构设计总说明、基础施工图、柱基大样、基础柱结构平面图、第1层拄结 构平面图、第2层柱结构平面图、基础梁结构平面图、第2层梁结构平面图、 屋顶梁结构平面图、第2层结构平面图、屋顶结构平面图、结构详图;
水施:给排水设计说明及图例、一层给排水平面图、二层给排水平面图、给水系统 图、排水系统图、卫生间大样图、太阳能热水器接管示怠图、参考图集;
电施:电气设计说明及图例、一层照明平面图、二层照明平面图、一层插座平面图 二层插座平面图、一层接地及弱电平面图、二层弱电平面图、屋顶防雷装置 平面图、配电系统图、卫生间局部等电位联接示S详图、弱电系统图。
全套A3设计图+高清效果图,拿到即可建造。





































































































