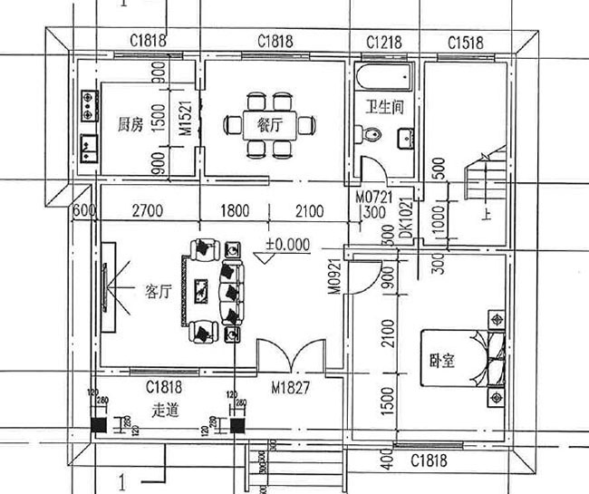
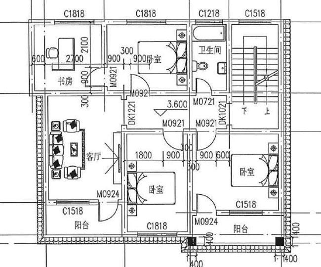
图纸介绍:本方案为占地120平方米左右的的二层小洋楼设计图,外观洋气,内部布局合理,能满足绝大部分家庭要求。
占地面积:11.4m*10.3m,120平方米左右;
建筑层高:二层;
建筑高度:9.57米(含屋顶);
设计功能:
一层户型设计:客厅、卧室、厨房、餐厅、卫生间
二层户型设计:客厅、卧室x3、书房、卫生间、阳台
图纸目录:
建筑图:建筑施工图目录、建筑设计说明、一层~二层平面图、屋顶平面图、立面图x4、1-1剖面图、楼梯大样图、节点大样图、门窗表
结构图:建筑施工图目录、结构设计总说明、基础配筋图、基础大样图、梁结构配筋图、板结构配筋图、屋面结构配筋图、楼梯结构图配筋图、节点大样图
给排水图:给排水图目录、给排水设计说明、给排水平面图、给水系统图、排水系统图、卫生间排水大样图
电气图:电气图目录、电气设计说明、等离子电位做法、强电系统图、弱电系统图、照明布置图、插座布置图、基础接地布置图、屋顶防雷布置图
本套方案包含60张A3设计图+彩色效果图

































































































